24 maart 2026

Eengezinswoningen uitgelicht

Oude Haven ligt centraal aan de Donge. Met het historisch centrum van Raamsdonksveer en het hart van vestingstad Geertruidenberg op loopafstand. Oude Haven heeft voor ieder wat wils door veel variatie in type, grootte en uitstraling van de woningen. De 9 gezinswoningen hebben een woonoppervlakte van ca. 124 m² tot en met 139 m². We vertellen je graag meer over wonen met ruimte en comfort voor het hele gezin.

Eengezinswoningen uitgelicht

De eengezinswoningen bevinden zich langs de Haven, die een directe verbinding vormt met het centrum. Door de ambachtelijke architectuur en de karakteristieke dakvormen heeft elke woning een eigen, herkenbare uitstraling. Tegelijkertijd sluiten ze naadloos aan bij de historische bebouwing van het voormalige havengebied.

Oude Haven Situatietekening

Ruimte, licht en comfort op drie woonlagen

De gezinswoningen bieden met een woonoppervlak van ca. 124 m² tot en met 139 m² volop ruimte voor een comfortabel gezinsleven. Op de begane grond bevindt zich een lichte woonkamer aan de tuinzijde en een open keuken aan de voorzijde, waarbij grote raampartijen en in sommige woningen een schuifpui, zorgen voor een fijne verbinding met buiten.

Op de eerste verdieping vind je de badkamer en drie slaapkamers, met een royale master bedroom. De bovenste verdieping biedt een ruime, vrij indeelbare zolderverdieping die naar wens kan worden ingericht als extra slaapkamer, thuiswerkplek, hobbyruimte of bijvoorbeeld een fitnessruimte.

Inclusief keuken, badkamer en sanitair

Afhankelijk van het type profiteer je van extra’s zoals een plat dak voor optimaal ruimtegebruik, een hoekligging met extra zijramen voor meer lichtinval of een gunstige zonligging van de tuin. Daarnaast zijn de woningen energiezuinig uitgevoerd en worden ze compleet opgeleverd met keuken, badkamer en sanitair, die je geheel naar eigen smaak kunt samenstellen.

Kenmerken

  • Vanaf €495.000,- v.o.n.  
  • Prijs is inclusief complete keuken en badkamer 
  • Ruime gezinswoning vanaf circa 124 m²
  • Drie slaapkamers
  • De bovenste verdieping biedt een ruime, vrij indeelbare zolderverdieping
  • Voorlopig energielabel A +++ (tot €25.000 extra leencapaciteit)

Woningaanbod

Woningaanbod

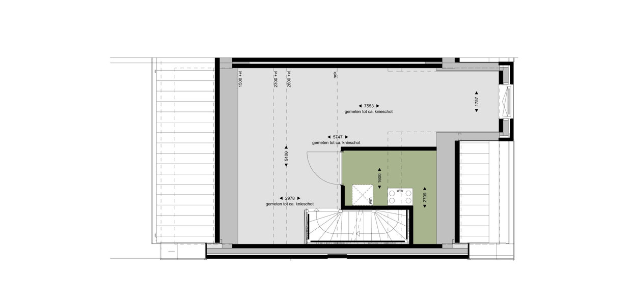
Plattegronden woningtype N2

Enthousiast geworden of vragen?

Je kunt je aanmelden via de website en een persoonlijk account aanmaken. In dit account kun je je voorkeuren opslaan en inschrijven op een bouwnummer via het digitale inschrijfformulier. De makelaar zal je hierna uitnodigen voor een gesprek en alle documentatie met je doornemen. Ook is er ruimte voor vragen. We zetten het bouwnummer dan tijdelijk onder optie. 

Liever eerst een vraag stellen? Neem dan direct vrijblijvend contact op met de makelaar! 

Van de Water Makelaars
nieuwbouw@vandewatergroep.nl
0162 - 447 447

Verbrugge Makelaardij
info@verbrugge.com
0162 - 521 297

 

Aanmelden

Aanmelden

Veelgestelde vragen

Waar ligt Oude Haven?

Oude Haven ligt centraal aan de Donge. Met het historisch centrum van Raamsdonksveer en het hart van vestingstad Geertruidenberg op loopafstand.

Wat zijn de voordelen van een nieuwbouwwoning?

Nieuwbouw wordt gebouwd volgens de laatste regelgeving en dat betekent dat je geniet van een heel aangenaam binnenklimaat. De energiezuinige woningen krijgen standaard vloerverwarming. Heel comfortabel. Daarbij heb je bij een nieuwbouwwoning lage energielasten, door de uitstekende isolatie en zonnepanelen op het dak. Goed voor het milieu en fijn voor je portemonnee. 

Hoe weet ik of ik de woning kan financieren?

Bij Dura Vermeer sta je er nooit alleen voor. Je krijgt een deskundig team aan je zijde dat jou ondersteunt bij elke stap. Onze financiële coaches van NEXTHome, de hypotheekpartner van Dura Vermeer, denken actief met je mee. Wil jij weten of een woning kopen in de Oude Haven voor jou financieel haalbaar is? Neem dan vrijblijvend contact op met NEXTHome.

Gratis oriëntatiegesprek
In één gesprek krijg je inzicht in je leencapaciteit, verwachte maandlasten en oplossingen voor eventuele dubbele woonlasten tijdens de bouw. Ook leggen ze uit hoe het bouwdepot werkt en hoe je meerwerk, keuken, badkamer en duurzame upgrades kunt meefinancieren. 

Nieuwbouwspecialist
NEXTHome heeft veel ervaring met nieuwbouwhypotheken en werkt met korte lijnen richting Dura Vermeer. Ze kennen de specifieke regels rond bouwdepots, rente tijdens de bouw en duurzame hypotheken.

Onafhankelijk advies
De Financiële Coaches vergelijken de rentes en voorwaarden van banken en zoeken de hypotheekvorm die bij jouw situatie past. Alles gebeurt discreet: jouw financiële gegevens worden niet gedeeld met Dura Vermeer.

Complete begeleiding tegen een vaste lage prijs
Bevalt het contact en het advies? Dan verzorgt NEXTHome jouw hypotheek van A tot Z voor de volgende lage all-in advieskosten: € 1.750,- voor starters, € 1.950,- voor doorstromers en € 2.250,- voor ondernemers

Neem contact op met NEXTHome per mail of telefonisch om een gratis oriëntatiegesprek in te plannen. Het gesprek kan via Teams bij NEXTHome of op kantoor in Oud-Beijerland.  

  • +31 (0)186 745772

Hoe duurzaam wordt De Oude Haven?

De Oude Haven wordt een duurzame buurt in de breedste zin van het woord. Klimaatadaptief en natuurinclusief. De woningen voldoen in het gebouwgebonden energieverbruik. Dit betekent dat je alleen nog betaalt voor het gebruiksgebonden energieverbruik. Denk hierbij aan het verbruik van apparaten in huis, zoals de wasmachine, koelkast en computer. En dankzij de verschillende soorten groen is dit niet alleen een thuishaven voor jong en oud, maar ook voor vogel, vlinder en bij. Niet alleen duurzaam en gezond, maar ook een plek om even gezellig met je buren bij te kletsen. 

Met welke extra kosten dien ik rekening te houden als ik een woning in Oude Haven koop?

Een aantal kosten zijn inbegrepen in de koopsom; notariskosten voor de levering, overdrachtsbelasting, btw, maar ook een keuken en badkamer. Hiernaast dien je rekening te houden met bijvoorbeeld de kosten voor het afsluiten van een hypotheek en het passeren van de hypotheekakte bij de notaris. Ook krijg je de mogelijkheid om extra opties te kiezen die rondom verkoop met bijbehorende prijzen op de website staan en dien je de woning zelf nog verder af te werken. Denk hierbij aan o.a. vloer-, wand- en raamafwerking. Laat je over de bijkomende kosten goed informeren.   

Wat wordt de sfeer van het gebied?

Bij het ontwerp is veel aandacht besteed aan de omgeving. We brengen de levendigheid terug naar de Oude Haven en maken het gebied groener, aantrekkelijker en uitnodigend voor iedereen.

Aan de rand van het bouwblok komen sfeervolle gezinswoningen. Deze huizen sluiten mooi aan bij de bestaande woningen aan de haven en zijn ontworpen met oog voor detail: ambachtelijk metselwerk, herkenbare dakvormen en een warme uitstraling.

Dichter bij de haven worden de gebouwen wat groter van opzet. Hier komt een stoer appartementencomplex dat prachtig uitkijkt over de rivier de Donge. De uitstraling doet denken aan een rij karaktervolle pakhuizen, elk met een eigen gezicht, naast elkaar aan de kade.

Ook aan groen en duurzaamheid is gedacht. Langs de kademuur komt een bijzondere groene zone met wadi’s – plekken waar regenwater op een natuurlijke manier wordt opgevangen en afgevoerd. Dit wordt een fijne, rustige plek met veel groen waar bewoners en dieren kunnen genieten. Denk aan bankjes in het gras, vogels in de struiken en kinderen die langs het water spelen.

De kade is er voor iedereen – voor bewoners, buurtgenoten en toevallige voorbijgangers. Het wordt een plek waar water en groen samenkomen en waar mensen elkaar ontmoeten. Een plek om thuis te komen én om van te genieten.

Wat betekent v.o.n.?

Vrij op naam. Dit betekent dat de koper bovenop de koopsom geen extra kosten betaalt voor het overdragen van de woning. Die kosten neemt de verkoper voor zijn rekening, zoals overdrachtsbelasting, kadastrale kosten en notariskosten voor de akte van levering.